福岡県福岡市東区の投資マンション|福岡県福岡市東区香椎駅前3丁目の投資マンション 350万円 西鉄香椎駅|不動産投資博士

←不動産賃貸経営博士
>
>
>
>
>
>
>
物件詳細
  • 投資マンション
  • その他

情報更新日:2026年04月02日 固有番号:823092

問い合わせ番号:185160950

福岡県福岡市東区の投資マンション 西鉄香椎駅 投資マンション

価格350万円 利回り7.85%
所在地福岡県福岡市東区香椎駅前3丁目 周辺地図を見る 満室時年収27.48万円(月額収入:2.29万円)
沿線/交通西鉄貝塚線 西鉄香椎駅 徒歩 9分
JR鹿児島本線 香椎駅 徒歩 11分
JR鹿児島本線 九産大前駅 徒歩 12分
管理費/修繕積立金7,000円 / 3,600円
構造/階数鉄筋コンクリート(RC造) 24戸 / 3階建て2階部分(地下−) 築年月1994年6月(築 31年)
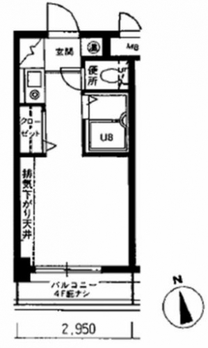
専有面積17.99u バルコニー面積:2.95u 間取り/方位1R / 南西
駐車場/駐輪場− / − 引渡し相談
取引態様仲介 現況その他
用途地域 土地権利/借地権所有権 / −円
管理組合/管理形態− / 全部委託(巡回) 不動産会社情報株式会社リアール株式会社リアールの収益物件をもっと見る
お電話での収益物件資料請求・お問い合わせはこちら

06-6120-9955

問い合わせ番号:185160950 固有番号:823092
※不動産会社からの上記番号でのお問合せはお断りしております。こちらからお問合せ下さい。

【外観】

画像クリックで写真が切り替わります
  • 【外観】<br />
  • 【間取り】<br />
  • <br />
  • 2沿線以上利用可
  • 駅徒歩10分以内
  • 500万以下

『福岡市エリア』 3駅利用可!九産大前!オーナーチェンジ物件
福岡市エリア!3駅利用可!九産大前!
西鉄香椎駅まで徒歩9分!学生の多いエリアです!

この物件を見た方はこんな収益物件も見ています!

福岡県福岡市博多区の投資マンション

福岡県福岡市博多区の投資マンション | 投資マンション
投資マンション

550万円8.72%

福岡県福岡市博多区博多駅南2丁目

会員限定物件

投資マンション

980万円----%

福岡県北九州市八幡西区の投資マンション

福岡県北九州市八幡西区の投資マンション | 投資マンション
投資マンション

400万円8.40%

福岡県北九州市八幡西区浅川台2丁目

会員限定物件

投資マンション

480万円----%

メゾン・ド・ソワール

メゾン・ド・ソワール | 投資マンション
投資マンション

200万円12.42%

福岡県福岡市博多区下呉服町

メゾン・ド・ぺルレ

メゾン・ド・ぺルレ | 投資マンション
投資マンション

240万円15.00%

熊本県熊本市中央区新屋敷2丁目

会員限定物件

投資マンション

200万円----%

会員限定物件

投資マンション

180万円----%

会員限定物件

投資マンション

320万円----%

福岡県福岡市中央区の投資マンション

福岡県福岡市中央区の投資マンション | 投資マンション
投資マンション

1,000万円5.88%

福岡県福岡市中央区天神5丁目

会員限定物件

投資マンション

170万円----%

会員限定物件

投資マンション

650万円----%

【福岡市中央区】ダイナコート天神アベニュ…

【福岡市中央区】ダイナコート天神アベニュー | 投資マンション
投資マンション

600万円7.60%

福岡県福岡市中央区春吉2丁目

ラ・レジダンス・ド・サントゥール

ラ・レジダンス・ド・サントゥール | 投資マンション
投資マンション

190万円14.21%

福岡県北九州市八幡西区鷹の巣2丁目

メゾン・ド・オセアン

メゾン・ド・オセアン | 投資マンション
投資マンション

250万円15.79%

福岡県福岡市東区御島崎2丁目
お電話での収益物件資料請求・お問い合わせはこちら

06-6120-9955

問い合わせ番号:185160950 固有番号:823092
この物件にお問い合わせ

会員登録がお済の方は、ログインすると、ご登録内容が自動で入力され、スムーズにお問い合わせできます。

エラーがあります
内容必須
お名前必須
連絡方法必須
メール必須
電話番号必須 ※ハイフン無しで入力
ご年収必須
自己資金必須 万円
会員登録
ご住所
FAX
備考 【その他ご内容】

ご質問や現地見学の希望などがございましたらご記入ください。