プレサンスTHE KYOTO澄華|京都府京都市南区東九条西河辺町の投資マンション 2,200万円 十条駅|不動産投資博士

←不動産賃貸経営博士
>
>
>
>
>
>
>
物件詳細
  • 投資マンション
  • その他

情報更新日:2026年03月25日 固有番号:825130

問い合わせ番号:185170808

プレサンスTHE KYOTO澄華 十条駅 投資マンション

価格2,200万円 利回り4.37%
所在地京都府京都市南区東九条西河辺町  満室時年収96.336万円(月額収入:8.028万円)
沿線/交通京都市営地下鉄烏丸線 十条駅 徒歩 6分
近鉄京都線 十条駅 徒歩 8分
京都市営地下鉄烏丸線 九条駅 徒歩 10分
管理費/修繕積立金−円 / 8,980円
構造/階数鉄筋コンクリート(RC造) 70戸 / 7階建て3階部分(地下−) 築年月2021年2月(築 5年)
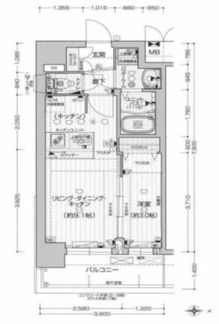
専有面積30.42u バルコニー面積:5.46u 間取り/方位1LDK / 東
駐車場/駐輪場− / − 引渡し相談
取引態様仲介 現況その他
用途地域 土地権利/借地権所有権 / −円
管理組合/管理形態− / 全部委託(巡回) 不動産会社情報株式会社リアール株式会社リアールの収益物件をもっと見る
お電話での収益物件資料請求・お問い合わせはこちら

06-6120-9955

問い合わせ番号:185170808 固有番号:825130
※不動産会社からの上記番号でのお問合せはお断りしております。こちらからお問合せ下さい。

【外観】

画像クリックで写真が切り替わります
  • 【外観】<br />
  • 【間取り】<br />
  • 2沿線以上利用可
  • 築5年以内
  • 駅徒歩10分以内

2021年築・プレサンスシリーズ!1LDK・30平米・十条!

この物件を見た方はこんな収益物件も見ています!

会員限定物件

投資マンション

2,080万円----%

会員限定物件

投資マンション

2,000万円----%

会員限定物件

投資マンション

2,000万円----%

大阪府大阪市福島区の投資マンション

大阪府大阪市福島区の投資マンション | 投資マンション
投資マンション

2,080万円4.35%

大阪府大阪市福島区大開1丁目

会員限定物件

投資マンション

2,200万円----%

大阪府大阪市北区の投資マンション

大阪府大阪市北区の投資マンション | 投資マンション
投資マンション

2,180万円4.23%

大阪府大阪市北区本庄東2丁目

会員限定物件

投資マンション

2,000万円----%

会員限定物件

投資マンション

2,150万円----%

大阪府大阪市淀川区の投資マンション

大阪府大阪市淀川区の投資マンション | 投資マンション
投資マンション

2,290万円3.86%

大阪府大阪市淀川区木川東4丁目

会員限定物件

投資マンション

2,398万円----%

兵庫県神戸市兵庫区の投資マンション

兵庫県神戸市兵庫区の投資マンション | 投資マンション
投資マンション

2,390万円3.87%

兵庫県神戸市兵庫区七宮町1丁目

べラジオ京都西大路2

べラジオ京都西大路2 | 投資マンション
投資マンション

2,400万円4.28%

京都府京都市下京区七条御所ノ内北町

大阪府大阪市浪速区の投資マンション

大阪府大阪市浪速区の投資マンション | 投資マンション
投資マンション

2,250万円4.37%

大阪府大阪市浪速区日本橋西1丁目

大阪府大阪市淀川区の投資マンション

大阪府大阪市淀川区の投資マンション | 投資マンション
投資マンション

2,000万円4.36%

大阪府大阪市淀川区木川東3丁目

大阪府大阪市西区の投資マンション

大阪府大阪市西区の投資マンション | 投資マンション
投資マンション

2,180万円3.74%

大阪府大阪市西区立売堀6丁目
お電話での収益物件資料請求・お問い合わせはこちら

06-6120-9955

問い合わせ番号:185170808 固有番号:825130
この物件にお問い合わせ

会員登録がお済の方は、ログインすると、ご登録内容が自動で入力され、スムーズにお問い合わせできます。

エラーがあります
内容必須
お名前必須
連絡方法必須
メール必須
電話番号必須 ※ハイフン無しで入力
ご年収必須
自己資金必須 万円
会員登録
ご住所
FAX
備考 【その他ご内容】

ご質問や現地見学の希望などがございましたらご記入ください。