京都府城陽市の一棟売りマンション|京都府城陽市枇杷庄鹿背田の一棟売りマンション 1億7,260万円 富野荘駅|不動産投資博士

←不動産賃貸経営博士
>
>
>
>
>
>
>
物件詳細
  • 一棟売りマンション
  • 賃貸中

情報更新日:2026年04月09日 固有番号:827637

問い合わせ番号:B02318-002624

京都府城陽市の一棟売りマンション 富野荘駅 一棟売りマンション

価格1億7,260万円 利回り8.25%
所在地京都府城陽市枇杷庄鹿背田 周辺地図を見る 満室時年収1424.4万円(月額収入:118.7万円)
沿線/交通近鉄京都線 富野荘駅 徒歩 2分 築年月1989年8月(築 36年)
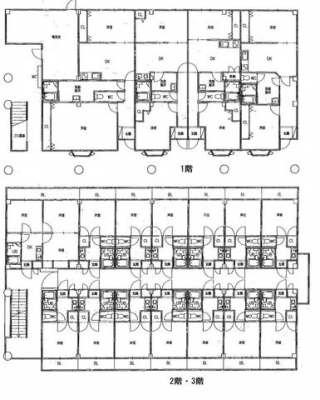
構造/階数鉄骨造(S造) 33戸 / 3階建て(地下−) 間取り1K
敷地面積550.30u  (166.76坪) 建物面積−u
建ぺい率/容積率60.0% / 200.0% 土地権利/借地権所有権 / −円
駐車場/駐輪場− / − 引渡し相談
取引態様仲介 現況/建築確認番号賃貸中 / 0
都市計画/国土法届出市街化区域 / − 地目/用途地域宅地 / 第一種住居地域
接道/私道負担面積 / − 不動産会社情報株式会社R-JAPAN株式会社R-JAPANの収益物件をもっと見る
設備 バス・トイレ別
お電話での収益物件資料請求・お問い合わせはこちら

06-4802-5104

問い合わせ番号:B02318-002624 固有番号:827637
※不動産会社からの上記番号でのお問合せはお断りしております。こちらからお問合せ下さい。

【外観】

画像クリックで写真が切り替わります
  • 【外観】<br />
  • 【間取り】<br />
  • 利回り8%以上
  • 駅徒歩10分以内

■駅徒歩1分
■表面利回り8.25%

住戸数:33戸
■駅徒歩1分
■表面利回り8.25%
■1K×29室、2DK×4室
■契約不適合責任免責
■任意売却物件


この物件を見た方はこんな収益物件も見ています!

大阪府大阪市東住吉区の一棟売りマンション

大阪府大阪市東住吉区の一棟売りマンション | 一棟売りマンション
一棟売りマンション

1億1,500万円7.18%

大阪府大阪市東住吉区田辺5丁目

会員限定物件

一棟売りマンション

2億800万円----%

会員限定物件

一棟売りマンション

1億6,000万円----%

大阪府大阪市住吉区の一棟売りマンション

大阪府大阪市住吉区の一棟売りマンション | 一棟売りマンション
一棟売りマンション

1億6,000万円7.04%

大阪府大阪市住吉区長居3丁目

会員限定物件

一棟売りマンション

1億5,000万円----%

大阪府大東市の一棟売りマンション

大阪府大東市の一棟売りマンション | 一棟売りマンション
一棟売りマンション

2億8,800万円10.02%

大阪府大東市寺川3丁目

会員限定物件

一棟売りマンション

1億4,000万円----%

大阪府吹田市の一棟売りマンション

大阪府吹田市の一棟売りマンション | 一棟売りマンション
一棟売りマンション

1億6,500万円6.83%

大阪府吹田市千里山西5丁目

大阪市東淀川区豊里!融資相談受付中!中国…

大阪市東淀川区豊里!融資相談受付中!中国語&EngOK! | 一棟売りマンション
一棟売りマンション

1億7,200万円6.70%

大阪府大阪市東淀川区豊里7丁目

京都市北区西賀茂柿ノ木町!融資相談受付中…

京都市北区西賀茂柿ノ木町!融資相談受付中!中国語&EngOK! | 一棟売りマンション
一棟売りマンション

1億3,200万円7.40%

京都府京都市北区西賀茂柿ノ木町

京都府京都市東山区の一棟売りマンション

京都府京都市東山区の一棟売りマンション | 一棟売りマンション
一棟売りマンション

1億3,300万円6.22%

京都府京都市東山区本町2丁目

大阪府岸和田市の一棟売りマンション

大阪府岸和田市の一棟売りマンション | 一棟売りマンション
一棟売りマンション

1億5,000万円6.61%

大阪府岸和田市堺町

京都府京都市上京区の一棟売りマンション

京都府京都市上京区の一棟売りマンション | 一棟売りマンション
一棟売りマンション

2億6,500万円10.15%

京都府京都市上京区藁屋町丸太町通黒門東入

大阪府大阪市阿倍野区の一棟売りマンション

大阪府大阪市阿倍野区の一棟売りマンション | 一棟売りマンション
一棟売りマンション

1億1,580万円6.93%

大阪府大阪市阿倍野区西田辺町2丁目

大阪市西淀川区姫里!融資相談受付中!中国…

大阪市西淀川区姫里!融資相談受付中!中国語&EngOK! | 一棟売りマンション
一棟売りマンション

1億2,000万円7.16%

大阪府大阪市西淀川区姫里2丁目
お電話での収益物件資料請求・お問い合わせはこちら

06-4802-5104

問い合わせ番号:B02318-002624 固有番号:827637
この物件にお問い合わせ

会員登録がお済の方は、ログインすると、ご登録内容が自動で入力され、スムーズにお問い合わせできます。

エラーがあります
内容必須
お名前必須
連絡方法必須
メール必須
電話番号必須 ※ハイフン無しで入力
ご年収必須
自己資金必須 万円
会員登録
ご住所
FAX
備考 【その他ご内容】

ご質問や現地見学の希望などがございましたらご記入ください。