ミサワ第一ビル|埼玉県所沢市大字山口の一棟売りアパート 9,000万円 遊園地西駅|不動産投資博士

←不動産賃貸経営博士
>
>
>
>
>
>
>
物件詳細
  • 一棟売りアパート
  • その他

情報更新日:2026年03月04日 固有番号:821683

問い合わせ番号:201957170

ミサワ第一ビル 遊園地西駅 一棟売りアパート

価格9,000万円 利回り8.34%
所在地埼玉県所沢市大字山口  満室時年収750.84万円(月額収入:62.57万円)
沿線/交通西武山口線 遊園地西駅 徒歩 5分 築年月1992年6月(築 33年)
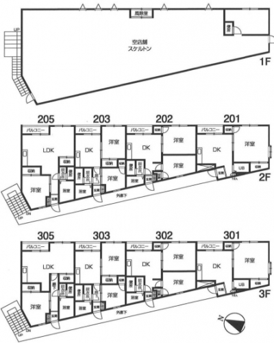
構造/階数鉄骨造(S造) 9戸 / 3階建て(地下−) 間取り
敷地面積275.64u 公簿 (83.53坪) 建物面積504.85u
建ぺい率/容積率−% / −% 土地権利/借地権所有権 / −円
駐車場/駐輪場− / − 引渡し相談
取引態様仲介 現況/建築確認番号その他 / −
都市計画/国土法届出 / − 地目/用途地域宅地 / −
接道/私道負担面積 / − 不動産会社情報株式会社FIELD株式会社FIELDの収益物件をもっと見る
お電話での収益物件資料請求・お問い合わせはこちら

03-5362-7075

問い合わせ番号:201957170 固有番号:821683
※不動産会社からの上記番号でのお問合せはお断りしております。こちらからお問合せ下さい。

【間取り】

画像クリックで写真が切り替わります
  • 【間取り】<br />
  • 利回り8%以上
  • 駅徒歩10分以内


この物件を見た方はこんな収益物件も見ています!

スカイブルー

スカイブルー | 一棟売りアパート
一棟売りアパート

8,600万円7.82%

千葉県鴨川市広場

伊勢原市桜台1棟アパート!融資相談受付中…

伊勢原市桜台1棟アパート!融資相談受付中!中国語&EngOK! | 一棟売りアパート
一棟売りアパート

1億7,040万円6.16%

神奈川県伊勢原市桜台2丁目

 | 一棟売りアパート
一棟売りアパート

1億570万円7.20%

埼玉県深谷市萱場

相模原市南区 レフィーニ小田急相模原

相模原市南区 レフィーニ小田急相模原 | 一棟売りアパート
一棟売りアパート

9,000万円7.21%

神奈川県相模原市南区南台2丁目

フェリシティ相模原

フェリシティ相模原 | 一棟売りアパート
一棟売りアパート

1億25万円7.00%

神奈川県相模原市中央区清新2

CAREL浜野A

CAREL浜野A | 一棟売りアパート
一棟売りアパート

9,800万円6.44%

千葉県千葉市中央区浜野町

auじぶん銀行融資評価済み★八潮市1棟売…

auじぶん銀行融資評価済み★八潮市1棟売アパート | 一棟売りアパート
一棟売りアパート

1億7,000万円6.42%

埼玉県八潮市大字古新田

フェリオ日野/アリエッタ日野

フェリオ日野/アリエッタ日野 | 一棟売りアパート
一棟売りアパート

9,600万円7.63%

東京都日野市旭が丘1丁目

QUIET CRAB HOUSE TOG…

QUIET CRAB HOUSE TOGETHER with B 洋光台 | 一棟売りアパート
一棟売りアパート

8,320万円6.00%

神奈川県横浜市港南区日野中央3-19-1…

QUIET CRAB HOUSE mix…

QUIET CRAB HOUSE mix 山手II | 一棟売りアパート
一棟売りアパート

8,632万円6.20%

神奈川県横浜市中区西之谷町79-9

CAREL浜野A

CAREL浜野A | 一棟売りアパート
一棟売りアパート

9,800万円6.44%

千葉県千葉市中央区浜野町

ルーチェJIBIKI

ルーチェJIBIKI | 一棟売りアパート
一棟売りアパート

8,680万円6.22%

千葉県柏市十余二

会員限定物件

一棟売りアパート

1億円----%

会員限定物件

一棟売りアパート

1億5,000万円----%

会員限定物件

一棟売りアパート

9,980万円----%

お電話での収益物件資料請求・お問い合わせはこちら

03-5362-7075

問い合わせ番号:201957170 固有番号:821683
この物件にお問い合わせ

会員登録がお済の方は、ログインすると、ご登録内容が自動で入力され、スムーズにお問い合わせできます。

エラーがあります
内容必須
お名前必須
連絡方法必須
メール必須
電話番号必須 ※ハイフン無しで入力
ご年収必須
自己資金必須 万円
会員登録
ご住所
FAX
備考 【その他ご内容】

ご質問や現地見学の希望などがございましたらご記入ください。