リフォーム済 利回り21% 2LDK 保証会社加入 駅13分|千葉県佐倉市井野の投資マンション 398万円 志津駅|不動産投資博士

←不動産賃貸経営博士
>
>
>
>
>
>
>
物件詳細
  • 投資マンション
  • その他

情報更新日:2026年03月14日 固有番号:823294

問い合わせ番号:185161749

リフォーム済 利回り21% 2LDK 保証会社加入 駅13分 志津駅 投資マンション

価格398万円 利回り21.10%
所在地千葉県佐倉市井野  満室時年収84万円(月額収入:7万円)
沿線/交通京成本線 志津駅 徒歩 13分
京成本線 ユーカリが丘駅 徒歩 15分
管理費/修繕積立金13,500円 / 13,000円
構造/階数鉄筋コンクリート(RC造) 20戸 / 5階建て4階部分(地下−) 築年月1972年7月(築 53年)
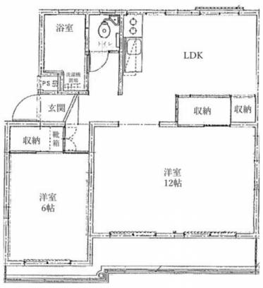
専有面積55.50u バルコニー面積:3.00u 間取り/方位2LDK / 南
駐車場/駐輪場− / − 引渡し相談
取引態様仲介 現況その他
用途地域 土地権利/借地権所有権 / −円
管理組合/管理形態あり / 全部委託(巡回) 不動産会社情報株式会社リアール株式会社リアールの収益物件をもっと見る
お電話での収益物件資料請求・お問い合わせはこちら

06-6120-9955

問い合わせ番号:185161749 固有番号:823294
※不動産会社からの上記番号でのお問合せはお断りしております。こちらからお問合せ下さい。

【外観】

画像クリックで写真が切り替わります
  • 【外観】<br />
  • 【間取り】<br />
  • <br />
  • <br />
  • <br />
  • <br />
  • <br />
  • <br />
  • <br />
  • <br />
  • <br />
  • 利回り14%以上
  • 2沿線以上利用可
  • 500万以下

リフォーム済 利回り21% 2LDK 保証会社加入 駅13分

この物件を見た方はこんな収益物件も見ています!

会員限定物件

投資マンション

250万円----%

新狭山ハイツ

新狭山ハイツ | 投資マンション
投資マンション

180万円33.33%

埼玉県狭山市大字青柳
お電話での収益物件資料請求・お問い合わせはこちら

06-6120-9955

問い合わせ番号:185161749 固有番号:823294
この物件にお問い合わせ

会員登録がお済の方は、ログインすると、ご登録内容が自動で入力され、スムーズにお問い合わせできます。

エラーがあります
内容必須
お名前必須
連絡方法必須
メール必須
電話番号必須 ※ハイフン無しで入力
ご年収必須
自己資金必須 万円
会員登録
ご住所
FAX
備考 【その他ご内容】

ご質問や現地見学の希望などがございましたらご記入ください。