大阪府大阪市浪速区の投資マンション|大阪府大阪市浪速区大国2丁目の投資マンション 1,850万円 今宮駅|不動産投資博士

←不動産賃貸経営博士
>
>
>
>
>
>
>
物件詳細
  • 投資マンション
  • その他

情報更新日:2026年03月17日 固有番号:823467

問い合わせ番号:185162882

大阪府大阪市浪速区の投資マンション 今宮駅 投資マンション

価格1,850万円 利回り4.07%
所在地大阪府大阪市浪速区大国2丁目 周辺地図を見る 満室時年収75.396万円(月額収入:6.283万円)
沿線/交通JR大阪環状線 今宮駅 徒歩 6分
Osaka Metro御堂筋線 大国町駅 徒歩 6分
JR大阪環状線 新今宮駅 徒歩 9分
管理費/修繕積立金6,410円 / 1,470円
構造/階数鉄筋コンクリート(RC造) 89戸 / 14階建て14階部分(地下−) 築年月2019年11月(築 6年)
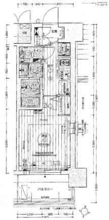
専有面積21.75u バルコニー面積:4.35u 間取り/方位1K / 南
駐車場/駐輪場− / − 引渡し相談
取引態様仲介 現況その他
用途地域 土地権利/借地権所有権 / −円
管理組合/管理形態− / 全部委託(巡回) 不動産会社情報株式会社リアール株式会社リアールの収益物件をもっと見る
お電話での収益物件資料請求・お問い合わせはこちら

06-6120-9955

問い合わせ番号:185162882 固有番号:823467
※不動産会社からの上記番号でのお問合せはお断りしております。こちらからお問合せ下さい。

【外観】

画像クリックで写真が切り替わります
  • 【外観】<br />
  • 【間取り】<br />
  • <br />
  • 2沿線以上利用可
  • 築10年以内
  • 駅徒歩10分以内

【大阪市浪速区】2019築・複数沿線利用可・最上階!

この物件を見た方はこんな収益物件も見ています!

会員限定物件

投資マンション

1,730万円----%

会員限定物件

投資マンション

1,700万円----%

会員限定物件

投資マンション

2,180万円----%

会員限定物件

投資マンション

1,880万円----%

会員限定物件

投資マンション

2,082万円----%

大阪府大阪市中央区の投資マンション

大阪府大阪市中央区の投資マンション | 投資マンション
投資マンション

1,580万円4.02%

大阪府大阪市中央区島之内1丁目

会員限定物件

投資マンション

1,800万円----%

大阪府大阪市淀川区の投資マンション

大阪府大阪市淀川区の投資マンション | 投資マンション
投資マンション

1,600万円4.80%

大阪府大阪市淀川区田川3丁目

会員限定物件

投資マンション

2,080万円----%

大阪府大阪市東成区の投資マンション

大阪府大阪市東成区の投資マンション | 投資マンション
投資マンション

1,750万円4.73%

大阪府大阪市東成区中本5丁目

ラナップスクエア中之島公園

ラナップスクエア中之島公園 | 投資マンション
投資マンション

1,520万円4.89%

大阪府大阪市北区西天満3丁目

京都府京都市南区の投資マンション

京都府京都市南区の投資マンション | 投資マンション
投資マンション

1,980万円4.53%

京都府京都市南区吉祥院西ノ庄淵ノ西町

大阪府大阪市東成区の投資マンション

大阪府大阪市東成区の投資マンション | 投資マンション
投資マンション

1,920万円4.46%

大阪府大阪市東成区中本2丁目

京都府京都市下京区の投資マンション

京都府京都市下京区の投資マンション | 投資マンション
投資マンション

1,600万円4.97%

京都府京都市下京区室町通松原下る元両替町

大阪府大阪市北区の投資マンション

大阪府大阪市北区の投資マンション | 投資マンション
投資マンション

1,980万円4.33%

大阪府大阪市北区扇町2丁目
お電話での収益物件資料請求・お問い合わせはこちら

06-6120-9955

問い合わせ番号:185162882 固有番号:823467
この物件にお問い合わせ

会員登録がお済の方は、ログインすると、ご登録内容が自動で入力され、スムーズにお問い合わせできます。

エラーがあります
内容必須
お名前必須
連絡方法必須
メール必須
電話番号必須 ※ハイフン無しで入力
ご年収必須
自己資金必須 万円
会員登録
ご住所
FAX
備考 【その他ご内容】

ご質問や現地見学の希望などがございましたらご記入ください。