大阪府大阪市北区の投資マンション|大阪府大阪市北区本庄東2丁目の投資マンション 2,180万円 天神橋筋六丁目駅|不動産投資博士

←不動産賃貸経営博士
>
>
>
>
>
>
>
物件詳細
  • 投資マンション
  • その他

情報更新日:2026年03月24日 固有番号:824929

問い合わせ番号:185170032

大阪府大阪市北区の投資マンション 天神橋筋六丁目駅 投資マンション

価格2,180万円 利回り4.23%
所在地大阪府大阪市北区本庄東2丁目 周辺地図を見る 満室時年収92.4万円(月額収入:7.7万円)
沿線/交通Osaka Metro谷町線 天神橋筋六丁目駅 徒歩 6分
Osaka Metro堺筋線 天神橋筋六丁目駅 徒歩 7分
阪急千里線 天神橋筋六丁目駅 徒歩 7分
管理費/修繕積立金6,400円 / 8,530円
構造/階数鉄筋コンクリート(RC造) 48戸 / 9階建て2階部分(地下−) 築年月2009年3月(築 17年)
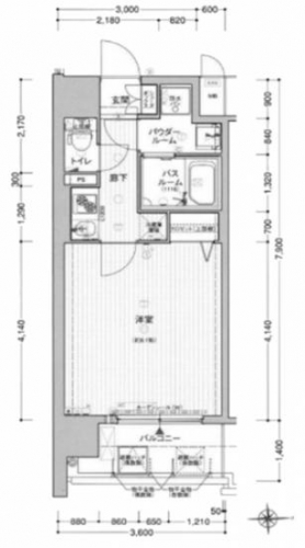
専有面積28.44u バルコニー面積:5.04u 間取り/方位1K / 東
駐車場/駐輪場− / − 引渡し相談
取引態様仲介 現況その他
用途地域 土地権利/借地権所有権 / −円
管理組合/管理形態− / 全部委託(巡回) 不動産会社情報株式会社リアール株式会社リアールの収益物件をもっと見る
お電話での収益物件資料請求・お問い合わせはこちら

06-6120-9955

問い合わせ番号:185170032 固有番号:824929
※不動産会社からの上記番号でのお問合せはお断りしております。こちらからお問合せ下さい。

【外観】

画像クリックで写真が切り替わります
  • 【外観】<br />
  • 【間取り】<br />
  • <br />
  • 2沿線以上利用可
  • 駅徒歩10分以内

【中崎町・天六徒歩エリア】3点セパ 脱衣所付き 賃貸中
28?越えのオーナチェンジ物件!
複数沿線徒歩圏内
・セブンイレブン徒歩1分
・スーパーライフ徒歩3分
天神橋筋商店街や梅田も近く、実需・投資共に人気のエリアです!

この物件を見た方はこんな収益物件も見ています!

会員限定物件

投資マンション

1,550万円----%

大阪府大阪市北区の投資マンション

大阪府大阪市北区の投資マンション | 投資マンション
投資マンション

1,600万円4.80%

大阪府大阪市北区天神橋8丁目

会員限定物件

投資マンション

2,000万円----%

大阪府大阪市淀川区の投資マンション

大阪府大阪市淀川区の投資マンション | 投資マンション
投資マンション

1,900万円4.28%

大阪府大阪市淀川区木川東3丁目

会員限定物件

投資マンション

1,530万円----%

大阪府大阪市淀川区の投資マンション

大阪府大阪市淀川区の投資マンション | 投資マンション
投資マンション

2,290万円3.86%

大阪府大阪市淀川区木川東4丁目

兵庫県神戸市兵庫区の投資マンション

兵庫県神戸市兵庫区の投資マンション | 投資マンション
投資マンション

2,390万円3.87%

兵庫県神戸市兵庫区七宮町1丁目

京都府京都市下京区の投資マンション

京都府京都市下京区の投資マンション | 投資マンション
投資マンション

1,899万円4.86%

京都府京都市下京区順風町

会員限定物件

投資マンション

1,680万円----%

会員限定物件

投資マンション

2,200万円----%

会員限定物件

投資マンション

1,880万円----%

べラジオ京都西大路2

べラジオ京都西大路2 | 投資マンション
投資マンション

2,400万円4.28%

京都府京都市下京区七条御所ノ内北町

京都府京都市東山区の投資マンション

京都府京都市東山区の投資マンション | 投資マンション
投資マンション

1,790万円4.69%

京都府京都市東山区毘沙門町

大阪府大阪市浪速区の投資マンション

大阪府大阪市浪速区の投資マンション | 投資マンション
投資マンション

1,850万円4.07%

大阪府大阪市浪速区大国2丁目

会員限定物件

投資マンション

2,000万円----%

お電話での収益物件資料請求・お問い合わせはこちら

06-6120-9955

問い合わせ番号:185170032 固有番号:824929
この物件にお問い合わせ

会員登録がお済の方は、ログインすると、ご登録内容が自動で入力され、スムーズにお問い合わせできます。

エラーがあります
内容必須
お名前必須
連絡方法必須
メール必須
電話番号必須 ※ハイフン無しで入力
ご年収必須
自己資金必須 万円
会員登録
ご住所
FAX
備考 【その他ご内容】

ご質問や現地見学の希望などがございましたらご記入ください。