草加市1棟マンション!融資相談受付中!中国語&EngOK!|埼玉県草加市瀬崎3丁目の一棟売りマンション 3億5,000万円 谷塚駅|不動産投資博士

←不動産賃貸経営博士
>
>
>
>
>
>
>
物件詳細
  • 一棟売りマンション
  • その他

情報更新日:2026年04月17日 固有番号:829132

問い合わせ番号:9311167

草加市1棟マンション!融資相談受付中!中国語&EngOK! 谷塚駅 一棟売りマンション

価格3億5,000万円 利回り8.35%
所在地埼玉県草加市瀬崎3丁目  満室時年収2922.4万円(月額収入:243.5333万円)
沿線/交通東武伊勢崎線 谷塚駅 徒歩 7分 築年月1973年8月(築 52年)
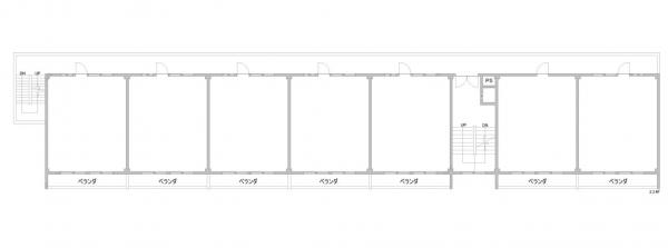
構造/階数鉄骨造(S造) 27戸 / 4階建て(地下−) 間取り−×27戸 (倉庫 5戸)
敷地面積1245.36u 公簿 (377.38坪) 建物面積1448.82u
建ぺい率/容積率60.0% / 200.0% 土地権利/借地権所有権 / −円
駐車場/駐輪場空有 / − 引渡し相談
取引態様仲介 現況/建築確認番号その他 / −
都市計画/国土法届出市街化区域 / 不要 地目/用途地域宅地 / 準工業地域
接道/私道負担面積東側 公道 / 北側 公道 / / − 不動産会社情報株式会社リタ不動産株式会社リタ不動産の収益物件をもっと見る
お電話での収益物件資料請求・お問い合わせはこちら

03-5357-7757

問い合わせ番号:9311167 固有番号:829132
※不動産会社からの上記番号でのお問合せはお断りしております。こちらからお問合せ下さい。

【外観】

画像クリックで写真が切り替わります
  • 【外観】<br />
  • 【間取り】<br />
  • <br />
  • <br />
  • 利回り8%以上
  • 駅徒歩10分以内

※占有面積はおおよその値です。
★★★オススメポイント★★★★★★★★★★★★★
●利回り8.35%!
●最寄り駅徒歩7分!
★★★★★★★★★★★★★★★★★★★★★★★★

【利回り】
●想定利回り8.35%  ●想定年収2922.4万円

【交通】
●東武伊勢崎線「谷塚」駅徒歩7分
English available

この物件を見た方はこんな収益物件も見ています!

草加市一棟マンション

草加市一棟マンション | 一棟売りマンション
一棟売りマンション

3億5,000万円8.34%

埼玉県草加市瀬崎3丁目

メーゾン狭山ヶ丘

メーゾン狭山ヶ丘 | 一棟売りマンション
一棟売りマンション

3億2,500万円8.92%

埼玉県入間市東藤沢6丁目

利回り7% S60年築RC造 店舗・事務…

利回り7% S60年築RC造 店舗・事務所付き | 一棟売りマンション
一棟売りマンション

4億8,320万円7.43%

埼玉県朝霞市田島2丁目

グランド吹上

グランド吹上 | 一棟売りマンション
一棟売りマンション

4億1,800万円9.03%

埼玉県鴻巣市下忍

上尾市浅間台1棟マンション!融資相談受付…

上尾市浅間台1棟マンション!融資相談受付中!中国語対応可能! | 一棟売りマンション
一棟売りマンション

4億3,000万円6.29%

埼玉県上尾市浅間台1丁目
お電話での収益物件資料請求・お問い合わせはこちら

03-5357-7757

問い合わせ番号:9311167 固有番号:829132
この物件にお問い合わせ

会員登録がお済の方は、ログインすると、ご登録内容が自動で入力され、スムーズにお問い合わせできます。

エラーがあります
内容必須
お名前必須
連絡方法必須
メール必須
電話番号必須 ※ハイフン無しで入力
ご年収必須
自己資金必須 万円
会員登録
ご住所
FAX
備考 【その他ご内容】

ご質問や現地見学の希望などがございましたらご記入ください。