さいたま市中央区本町東4丁目 1棟収益マンション|埼玉県さいたま市中央区本町東4丁目の一棟売りマンション 7,300万円 与野本町駅|不動産投資博士

←不動産賃貸経営博士
>
>
>
>
>
>
>
物件詳細
  • 一棟売りマンション
  • 満室

情報更新日:2025年08月26日 固有番号:785742

問い合わせ番号:260048034

さいたま市中央区本町東4丁目 1棟収益マンション 与野本町駅 一棟売りマンション

価格7,300万円 利回り6.06%
所在地埼玉県さいたま市中央区本町東4丁目  満室時年収442.8万円(月額収入:36.9万円)
沿線/交通JR埼京線 与野本町駅 徒歩 5分
JR埼京線 北与野駅 徒歩 12分
築年月1988年12月(築 36年)
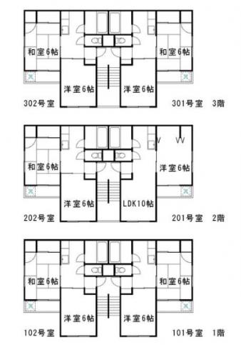
構造/階数鉄骨造(S造) 6戸 / 3階建て(地下−) 間取り2K×5戸 (1LDK×1戸)
敷地面積132.60u  (40.18坪) 建物面積225.18u
建ぺい率/容積率60.0% / 200.0% 土地権利/借地権所有権 / −円
駐車場/駐輪場− / − 引渡し相談
取引態様仲介 現況/建築確認番号満室 / −
都市計画/国土法届出市街化区域 / − 地目/用途地域宅地 / 第一種中高層住居専用地域
接道/私道負担面積東側 幅員5.90 m公道9.30m接道  / / − 不動産会社情報ハウスウェル株式会社ハウスウェル株式会社の収益物件をもっと見る
無料電話での収益物件資料請求・お問い合わせはこちら

0066-96-8069-6611

問い合わせ番号:260048034 固有番号:785742
※不動産会社からの上記番号でのお問合せはお断りしております。こちらからお問合せ下さい。

【外観】

画像クリックで写真が切り替わります
  • 【外観】<br />
  • <br />
  • 2沿線以上利用可
  • 満室
  • 駅徒歩10分以内

JR『与野本町』駅徒歩5分/満室稼働中/鉄骨造3階建/2K
■JR『与野本町』駅徒歩5分/『北与野』駅徒歩12分 通勤快速駅
■満室稼働中
■参考相続税路線価245千円/平米
■利回り6.06%
■鉄骨造3階建
■2K×5戸 1LDK×1戸 計6戸
■バス・トイレ別

この物件を見た方はこんな収益物件も見ています!

丸丘ハイツ

丸丘ハイツ | 一棟売りマンション
一棟売りマンション

7,960万円7.50%

神奈川県川崎市麻生区高石1丁目

ロッキー作草部

ロッキー作草部 | 一棟売りマンション
一棟売りマンション

7,700万円8.26%

千葉県千葉市稲毛区作草部1丁目

桜森ストーンズハイツ

桜森ストーンズハイツ | 一棟売りマンション
一棟売りマンション

6,980万円7.76%

神奈川県大和市桜森2-6-1

桜森ストーンズハイツ

桜森ストーンズハイツ | 一棟売りマンション
一棟売りマンション

6,980万円7.76%

神奈川県大和市桜森2丁目

ジャハンマンション

ジャハンマンション | 一棟売りマンション
一棟売りマンション

8,500万円7.86%

千葉県船橋市二和東6丁目

OTAKENSO BLD

OTAKENSO BLD | 一棟売りマンション
一棟売りマンション

7,400万円10.16%

神奈川県横須賀市田浦町4丁目

諏訪5丁目 連棟式2棟

諏訪5丁目 連棟式2棟 | 一棟売りマンション
一棟売りマンション

6,480万円8.14%

東京都多摩市諏訪5丁目7-2

相模原市緑区!融資相談受付中!中国語&E…

相模原市緑区!融資相談受付中!中国語&EngOK! | 一棟売りマンション
一棟売りマンション

7,100万円8.77%

神奈川県相模原市緑区下九沢

プレジール■表面利回り8.37%■全7戸…

プレジール■表面利回り8.37%■全7戸満室稼働中 | 一棟売りマンション
一棟売りマンション

8,570万円8.37%

埼玉県川口市末広3-3-22

シャトー上星川

シャトー上星川 | 一棟売りマンション
一棟売りマンション

7,200万円9.10%

神奈川県横浜市保土ケ谷区東川島町38-5

府中市1棟マンション!融資相談受付中!中…

府中市1棟マンション!融資相談受付中!中国語&EngOK! | 一棟売りマンション
一棟売りマンション

7,080万円6.55%

東京都府中市是政5丁目

伊勢崎市太田町!融資相談受付中!中国語&…

伊勢崎市太田町!融資相談受付中!中国語&EngOK! | 一棟売りマンション
一棟売りマンション

7,800万円13.65%

群馬県伊勢崎市太田町

エターナル千代田

エターナル千代田 | 一棟売りマンション
一棟売りマンション

8,300万円7.50%

神奈川県相模原市中央区千代田4丁目507…

千葉市1棟マンション!融資相談受付中!中…

千葉市1棟マンション!融資相談受付中!中国語&Eng OK! | 一棟売りマンション
一棟売りマンション

7,980万円5.86%

千葉県千葉市稲毛区稲丘町

ラレーブ是政

ラレーブ是政 | 一棟売りマンション
一棟売りマンション

6,980万円5.74%

東京都府中市是政5
無料電話での収益物件資料請求・お問い合わせはこちら

0066-96-8069-6611

問い合わせ番号:260048034 固有番号:785742
この物件にお問い合わせ

会員登録がお済の方は、ログインすると、ご登録内容が自動で入力され、スムーズにお問い合わせできます。

エラーがあります
内容必須
お名前必須
連絡方法必須
メール必須
電話番号必須 ※ハイフン無しで入力
ご年収必須
自己資金必須 万円
会員登録
ご住所
FAX
備考 【その他ご内容】

ご質問や現地見学の希望などがございましたらご記入ください。