兵庫県尼崎市の一棟売りアパート|兵庫県尼崎市若王寺3丁目の一棟売りアパート 7,700万円 園田駅|不動産投資博士

←不動産賃貸経営博士
>
>
>
>
>
>
>
物件詳細
  • 一棟売りアパート
  • 賃貸中

情報更新日:2026年01月21日 固有番号:813734

問い合わせ番号:B02318-002105

兵庫県尼崎市の一棟売りアパート 園田駅 一棟売りアパート

価格7,700万円 利回り5.03%
所在地兵庫県尼崎市若王寺3丁目 周辺地図を見る 満室時年収388万円(月額収入:32.3333万円)
沿線/交通阪急神戸本線 園田駅 徒歩 15分 築年月2019年5月(築 6年)
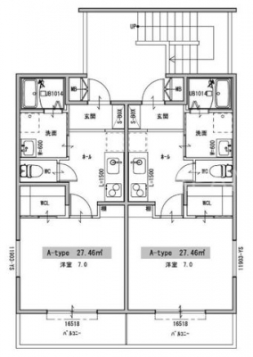
構造/階数木造 6戸 / 3階建て(地下−) 間取り1R
敷地面積120.65u  (36.56坪) 建物面積−u
建ぺい率/容積率60.0% / 200.0% 土地権利/借地権所有権 / −円
駐車場/駐輪場− / − 引渡し相談
取引態様仲介 現況/建築確認番号賃貸中 / 0
都市計画/国土法届出市街化区域 / − 地目/用途地域宅地 / 第一種中高層住居専用地域
接道/私道負担面積北側 幅員6.00 m公道8.90m接道  / / − 不動産会社情報株式会社R-JAPAN株式会社R-JAPANの収益物件をもっと見る
設備 都市ガス / 駐輪場 / バイク置き場 / バス・トイレ別 / 室内洗濯機置場
無料電話での収益物件資料請求・お問い合わせはこちら

0066-96-8064-9176

問い合わせ番号:B02318-002105 固有番号:813734
※不動産会社からの上記番号でのお問合せはお断りしております。こちらからお問合せ下さい。

【外観】
外観

画像クリックで写真が切り替わります
  • 【外観】<br />外観
  • 【間取り】<br />間取図
  • <br />エントランス
  • <br />
  • 築10年以内

■検査済証あり
■2019年築
住戸数:6戸
■検査済証あり
■2019年築
■サブリース契約中


この物件を見た方はこんな収益物件も見ています!

兵庫県神戸市灘区の一棟売りアパート

兵庫県神戸市灘区の一棟売りアパート | 一棟売りアパート
一棟売りアパート

9,000万円5.69%

兵庫県神戸市灘区原田通2丁目

京都府京都市左京区の一棟売りアパート

京都府京都市左京区の一棟売りアパート | 一棟売りアパート
一棟売りアパート

6,280万円7.52%

京都府京都市左京区一乗寺松原町

大阪府池田市の一棟売りアパート

大阪府池田市の一棟売りアパート | 一棟売りアパート
一棟売りアパート

6,700万円7.54%

大阪府池田市豊島北1丁目

大阪府吹田市の一棟売りアパート

大阪府吹田市の一棟売りアパート | 一棟売りアパート
一棟売りアパート

7,800万円5.35%

大阪府吹田市山手町2丁目

大阪府池田市の一棟売りアパート

大阪府池田市の一棟売りアパート | 一棟売りアパート
一棟売りアパート

8,240万円6.00%

大阪府池田市八王寺1丁目

大阪市1棟アパート!融資相談受付中!中国…

大阪市1棟アパート!融資相談受付中!中国語&EngOK! | 一棟売りアパート
一棟売りアパート

6,380万円8.21%

大阪府大阪市住吉区遠里小野5丁目

兵庫県神戸市長田区の一棟売りアパート

兵庫県神戸市長田区の一棟売りアパート | 一棟売りアパート
一棟売りアパート

8,580万円6.43%

兵庫県神戸市長田区久保町7丁目

兵庫県神戸市長田区の一棟売りアパート

兵庫県神戸市長田区の一棟売りアパート | 一棟売りアパート
一棟売りアパート

7,080万円6.50%

兵庫県神戸市長田区日吉町4丁目

大阪府堺市西区の一棟売りアパート

大阪府堺市西区の一棟売りアパート | 一棟売りアパート
一棟売りアパート

6,150万円7.73%

大阪府堺市西区鳳中町4丁

大阪府箕面市瀬川4丁目!融資相談受付中!…

大阪府箕面市瀬川4丁目!融資相談受付中!中国語&EngOK! | 一棟売りアパート
一棟売りアパート

7,000万円6.32%

大阪府箕面市瀬川4丁目

神戸市長田区駒ケ林町!融資相談受付中!中…

神戸市長田区駒ケ林町!融資相談受付中!中国語&EngOK! | 一棟売りアパート
一棟売りアパート

6,180万円6.13%

兵庫県神戸市長田区駒ケ林町4丁目

兵庫県明石市の一棟売りアパート

兵庫県明石市の一棟売りアパート | 一棟売りアパート
一棟売りアパート

7,500万円7.44%

兵庫県明石市二見町西二見

兵庫県神戸市長田区の一棟売りアパート

兵庫県神戸市長田区の一棟売りアパート | 一棟売りアパート
一棟売りアパート

6,780万円6.12%

兵庫県神戸市長田区蓮宮通2丁目

会員限定物件

一棟売りアパート

8,180万円----%

会員限定物件

一棟売りアパート

8,480万円----%

無料電話での収益物件資料請求・お問い合わせはこちら

0066-96-8064-9176

問い合わせ番号:B02318-002105 固有番号:813734
この物件にお問い合わせ

会員登録がお済の方は、ログインすると、ご登録内容が自動で入力され、スムーズにお問い合わせできます。

エラーがあります
内容必須
お名前必須
連絡方法必須
メール必須
電話番号必須 ※ハイフン無しで入力
ご年収必須
自己資金必須 万円
会員登録
ご住所
FAX
備考 【その他ご内容】

ご質問や現地見学の希望などがございましたらご記入ください。