グリーンコート岡沢町|神奈川県横浜市保土ケ谷区岡沢町の一棟売りアパート 5,130万円 三ツ沢上町駅|不動産投資博士

←不動産賃貸経営博士
>
>
>
>
>
>
>
物件詳細
  • 一棟売りアパート
  • 満室

情報更新日:2026年04月17日 固有番号:819022

問い合わせ番号:185140791

グリーンコート岡沢町 三ツ沢上町駅 一棟売りアパート

価格5,130万円 利回り7.53%
所在地神奈川県横浜市保土ケ谷区岡沢町  満室時年収386.4万円(月額収入:32.2万円)
沿線/交通横浜市営地下鉄ブルーライン 三ツ沢上町駅 徒歩 14分
相鉄本線 和田町駅 徒歩 22分
築年月2003年11月(築 22年)
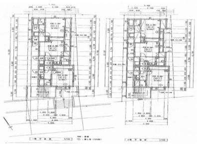
構造/階数木造 6戸 / 2階建て(地下−) 間取り
敷地面積114.80u 公簿 (34.79坪) 建物面積121.56u
建ぺい率/容積率−% / −% 土地権利/借地権所有権 / −円
駐車場/駐輪場− / − 引渡し相談
取引態様仲介 現況/建築確認番号満室 / −
都市計画/国土法届出 / − 地目/用途地域− / −
接道/私道負担面積 / − 不動産会社情報株式会社リアール株式会社リアールの収益物件をもっと見る
お電話での収益物件資料請求・お問い合わせはこちら

06-6120-9955

問い合わせ番号:185140791 固有番号:819022
※不動産会社からの上記番号でのお問合せはお断りしております。こちらからお問合せ下さい。

【外観】

画像クリックで写真が切り替わります
  • 【外観】<br />
  • 【間取り】<br />
  • <br />
  • 2沿線以上利用可
  • 満室

満室稼働中・横国まで徒歩5分!2003年築・木造6戸数!

この物件を見た方はこんな収益物件も見ています!

会員限定物件

一棟売りアパート

5,200万円----%

会員限定物件

一棟売りアパート

4,500万円----%

会員限定物件

一棟売りアパート

4,740万円----%

神奈川県高座郡寒川町の一棟売りアパート

神奈川県高座郡寒川町の一棟売りアパート | 一棟売りアパート
一棟売りアパート

5,880万円7.54%

神奈川県高座郡寒川町宮山

【横浜市港北区】白楽駅徒歩12分!利回り…

【横浜市港北区】白楽駅徒歩12分!利回り14.5%!満室! | 一棟売りアパート
一棟売りアパート

4,500万円14.50%

神奈川県横浜市港北区篠原台町

会員限定物件

一棟売りアパート

4,980万円----%

ピュアハウス

ピュアハウス | 一棟売りアパート
一棟売りアパート

5,600万円8.31%

千葉県千葉市花見川区幕張町6丁目

栃木県足利市の一棟売りアパート

栃木県足利市の一棟売りアパート | 一棟売りアパート
一棟売りアパート

4,700万円10.09%

栃木県足利市雪輪町

会員限定物件

一棟売りアパート

4,300万円----%

埼玉県新座市の一棟売りアパート

埼玉県新座市の一棟売りアパート | 一棟売りアパート
一棟売りアパート

5,500万円8.64%

埼玉県新座市東3丁目

会員限定物件

一棟売りアパート

5,580万円----%

会員限定物件

一棟売りアパート

4,250万円----%

朝霞市1棟アパート!融資相談受付中!中国…

朝霞市1棟アパート!融資相談受付中!中国語&EngOK! | 一棟売りアパート
一棟売りアパート

4,200万円7.14%

埼玉県朝霞市朝志ケ丘4丁目

練馬区1棟アパート!融資相談受付中!中国…

練馬区1棟アパート!融資相談受付中!中国語&EngOK! | 一棟売りアパート
一棟売りアパート

6,780万円6.49%

東京都練馬区富士見台2丁目

足立区足立1棟アパート!融資相談受付中!…

足立区足立1棟アパート!融資相談受付中!中国語&EngOK! | 一棟売りアパート
一棟売りアパート

6,600万円5.54%

東京都足立区足立4丁目
お電話での収益物件資料請求・お問い合わせはこちら

06-6120-9955

問い合わせ番号:185140791 固有番号:819022
この物件にお問い合わせ

会員登録がお済の方は、ログインすると、ご登録内容が自動で入力され、スムーズにお問い合わせできます。

エラーがあります
内容必須
お名前必須
連絡方法必須
メール必須
電話番号必須 ※ハイフン無しで入力
ご年収必須
自己資金必須 万円
会員登録
ご住所
FAX
備考 【その他ご内容】

ご質問や現地見学の希望などがございましたらご記入ください。