シーフォルム東新宿2|東京都新宿区大久保1丁目の投資マンション 3,900万円 東新宿駅|不動産投資博士

←不動産賃貸経営博士
>
>
>
>
>
>
>
物件詳細
  • 投資マンション
  • その他

情報更新日:2026年04月14日 固有番号:828277

問い合わせ番号:185186638

シーフォルム東新宿2 東新宿駅 投資マンション

価格3,900万円 利回り4.76%
所在地東京都新宿区大久保1丁目  満室時年収186万円(月額収入:15.5万円)
沿線/交通東京メトロ副都心線 東新宿駅 徒歩 3分
都営大江戸線 東新宿駅 徒歩 3分
東京メトロ丸ノ内線 新宿三丁目駅 徒歩 9分
管理費/修繕積立金8,430円 / 4,110円
構造/階数鉄筋コンクリート(RC造) 48戸 / 5階建て5階部分(地下−) 築年月2018年12月(築 7年)
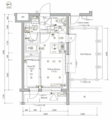
専有面積25.41u バルコニー面積:4.42u 間取り/方位1DK / 東
駐車場/駐輪場− / − 引渡し相談
取引態様仲介 現況その他
用途地域 土地権利/借地権所有権 / −円
管理組合/管理形態− / 全部委託(巡回) 不動産会社情報株式会社リアール株式会社リアールの収益物件をもっと見る
お電話での収益物件資料請求・お問い合わせはこちら

06-6120-9955

問い合わせ番号:185186638 固有番号:828277
※不動産会社からの上記番号でのお問合せはお断りしております。こちらからお問合せ下さい。

【外観】

画像クリックで写真が切り替わります
  • 【外観】<br />
  • 【間取り】<br />
  • 2沿線以上利用可
  • 築10年以内
  • 駅徒歩10分以内

【東新宿】駅徒歩3分!利回り4.7%!最上階・ルーフバル付!

この物件を見た方はこんな収益物件も見ています!

F リヴシティ北馬込

F リヴシティ北馬込 | 投資マンション
投資マンション

4,000万円3.73%

東京都大田区北馬込2丁目

F 2018年築・駅徒歩2分・角部屋1L…

F 2018年築・駅徒歩2分・角部屋1LDK・墨田区 | 投資マンション
投資マンション

3,890万円4.13%

東京都墨田区文花2丁目

東京都新宿区の投資マンション

東京都新宿区の投資マンション | 投資マンション
投資マンション

3,600万円4.10%

東京都新宿区新宿1丁目

エスコートノヴェル白金高輪

エスコートノヴェル白金高輪 | 投資マンション
投資マンション

4,200万円4.14%

東京都港区三田5丁目

ヴィアーレ浦和

ヴィアーレ浦和 | 投資マンション
投資マンション

3,990万円3.90%

埼玉県さいたま市浦和区高砂

メインステージ銀座

メインステージ銀座 | 投資マンション
投資マンション

3,580万円3.51%

東京都中央区銀座8丁目

パークウェル麻布十番

パークウェル麻布十番 | 投資マンション
投資マンション

4,280万円2.85%

東京都港区三田1丁目

ジェノヴィア東日暮里グリーンヴェール

ジェノヴィア東日暮里グリーンヴェール | 投資マンション
投資マンション

3,580万円4.75%

東京都荒川区東日暮里4丁目

シティテラス大宮宮原 区分マンション

シティテラス大宮宮原 区分マンション | 投資マンション
投資マンション

3,980万円4.91%

埼玉県さいたま市北区宮原町1丁目

【2室バルク売り】中野区・板橋区 1K区…

【2室バルク売り】中野区・板橋区 1K区分マンション | 投資マンション
投資マンション

3,700万円4.82%

東京都中野区東中野4-2-14

【2室バルク売り】板橋区・中野区 区分マ…

【2室バルク売り】板橋区・中野区 区分マンション | 投資マンション
投資マンション

3,700万円4.82%

東京都板橋区板橋1-44-3

千代田区区分マンション!融資相談受付中!…

千代田区区分マンション!融資相談受付中!中国語&EngOK! | 投資マンション
投資マンション

4,180万円4.30%

東京都千代田区麹町3丁目

台東区区分マンション!融資相談受付中!中…

台東区区分マンション!融資相談受付中!中国語&EngOK! | 投資マンション
投資マンション

3,810万円−%

東京都台東区浅草5丁目

会員限定物件

投資マンション

3,580万円----%

お電話での収益物件資料請求・お問い合わせはこちら

06-6120-9955

問い合わせ番号:185186638 固有番号:828277
この物件にお問い合わせ

会員登録がお済の方は、ログインすると、ご登録内容が自動で入力され、スムーズにお問い合わせできます。

エラーがあります
内容必須
お名前必須
連絡方法必須
メール必須
電話番号必須 ※ハイフン無しで入力
ご年収必須
自己資金必須 万円
会員登録
ご住所
FAX
備考 【その他ご内容】

ご質問や現地見学の希望などがございましたらご記入ください。