【東京都新宿区】2021年築・駅徒歩8分!|東京都新宿区西落合4丁目の投資マンション 3,100万円 東長崎駅|不動産投資博士

←不動産賃貸経営博士
>
>
>
>
>
>
>
物件詳細
  • 投資マンション
  • その他

情報更新日:2026年03月03日 固有番号:821481

問い合わせ番号:185152075

【東京都新宿区】2021年築・駅徒歩8分! 東長崎駅 投資マンション

価格3,100万円 利回り3.75%
所在地東京都新宿区西落合4丁目  満室時年収116.4万円(月額収入:9.7万円)
沿線/交通西武池袋線 東長崎駅 徒歩 8分
都営大江戸線 新江古田駅 徒歩 9分
都営大江戸線 落合南長崎駅 徒歩 14分
管理費/修繕積立金6,200円 / 1,500円
構造/階数鉄筋コンクリート(RC造) 59戸 / 10階建て1階部分(地下−) 築年月2021年1月(築 5年)
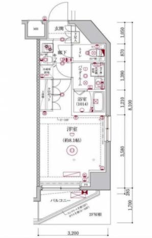
専有面積25.54u バルコニー面積:5.44u 間取り/方位1K / 東
駐車場/駐輪場− / − 引渡し相談
取引態様仲介 現況その他
用途地域 土地権利/借地権所有権 / −円
管理組合/管理形態− / 全部委託(巡回) 不動産会社情報株式会社リアール株式会社リアールの収益物件をもっと見る
お電話での収益物件資料請求・お問い合わせはこちら

06-6120-9955

問い合わせ番号:185152075 固有番号:821481
※不動産会社からの上記番号でのお問合せはお断りしております。こちらからお問合せ下さい。

【外観】

画像クリックで写真が切り替わります
  • 【外観】<br />
  • 【間取り】<br />
  • <br />
  • 2沿線以上利用可
  • 築5年以内
  • 駅徒歩10分以内

2021年築!最寄り駅徒歩8分!新宿区西落合エリア!

この物件を見た方はこんな収益物件も見ています!

会員限定物件

投資マンション

2,800万円----%

会員限定物件

投資マンション

3,480万円----%

会員限定物件

投資マンション

3,100万円----%

会員限定物件

投資マンション

3,300万円----%

東京都台東区の投資マンション

東京都台東区の投資マンション | 投資マンション
投資マンション

3,500万円3.53%

東京都台東区元浅草1丁目

会員限定物件

投資マンション

3,500万円----%

スカイコート銀座東

スカイコート銀座東 | 投資マンション
投資マンション

2,830万円3.90%

東京都中央区築地1丁目

会員限定物件

投資マンション

2,680万円----%

東京都品川区の投資マンション

東京都品川区の投資マンション | 投資マンション
投資マンション

2,580万円4.27%

東京都品川区東品川3丁目

会員限定物件

投資マンション

2,500万円----%

会員限定物件

投資マンション

2,862万円----%

東京都豊島区の投資マンション

東京都豊島区の投資マンション | 投資マンション
投資マンション

2,730万円3.64%

東京都豊島区池袋1丁目

PREST MA−RO両国

PREST MA−RO両国 | 投資マンション
投資マンション

2,800万円4.10%

東京都墨田区両国2

品川区区分マンション!融資相談受付中!中…

品川区区分マンション!融資相談受付中!中国語&EngOK! | 投資マンション
投資マンション

2,600万円4.57%

東京都品川区西五反田2丁目

新宿区区分マンション!融資相談受付中!中…

新宿区区分マンション!融資相談受付中!中国語&EngOK! | 投資マンション
投資マンション

3,300万円4.20%

東京都新宿区百人町2丁目
お電話での収益物件資料請求・お問い合わせはこちら

06-6120-9955

問い合わせ番号:185152075 固有番号:821481
この物件にお問い合わせ

会員登録がお済の方は、ログインすると、ご登録内容が自動で入力され、スムーズにお問い合わせできます。

エラーがあります
内容必須
お名前必須
連絡方法必須
メール必須
電話番号必須 ※ハイフン無しで入力
ご年収必須
自己資金必須 万円
会員登録
ご住所
FAX
備考 【その他ご内容】

ご質問や現地見学の希望などがございましたらご記入ください。