福岡県福岡市博多区の投資マンション|福岡県福岡市博多区築港本町の投資マンション 2,000万円 中洲川端駅|不動産投資博士

←不動産賃貸経営博士
>
>
>
>
>
>
>
物件詳細
  • 投資マンション
  • その他

情報更新日:2026年02月08日 固有番号:816908

問い合わせ番号:185130540

福岡県福岡市博多区の投資マンション 中洲川端駅 投資マンション

価格2,000万円 利回り4.38%
所在地福岡県福岡市博多区築港本町 周辺地図を見る 満室時年収87.6万円(月額収入:7.3万円)
沿線/交通福岡市地下鉄空港線 中洲川端駅 徒歩 14分
福岡市地下鉄箱崎線 呉服町駅 徒歩 18分
管理費/修繕積立金6,100円 / 2,000円
構造/階数鉄筋コンクリート(RC造) 161戸 / 14階建て10階部分(地下−) 築年月2021年10月(築 4年)
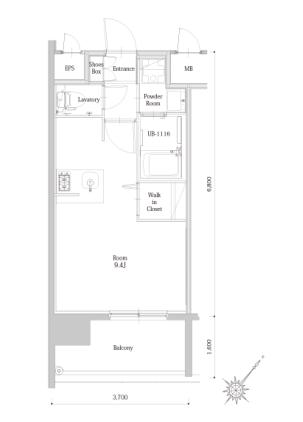
専有面積23.98u バルコニー面積:5.92u 間取り/方位1K / 東南
駐車場/駐輪場− / − 引渡し相談
取引態様仲介 現況その他
用途地域 土地権利/借地権所有権 / −円
管理組合/管理形態− / 全部委託(日勤) 不動産会社情報株式会社リアール株式会社リアールの収益物件をもっと見る
お電話での収益物件資料請求・お問い合わせはこちら

06-6120-9955

問い合わせ番号:185130540 固有番号:816908
※不動産会社からの上記番号でのお問合せはお断りしております。こちらからお問合せ下さい。

【外観】

画像クリックで写真が切り替わります
  • 【外観】<br />
  • 【間取り】<br />
  • 2沿線以上利用可
  • 築5年以内

【福岡市博多区】2021築RC造・博多港すぐ眺望良好な立地!

この物件を見た方はこんな収益物件も見ています!

福岡県福岡市博多区の投資マンション

福岡県福岡市博多区の投資マンション | 投資マンション
投資マンション

2,100万円4.00%

福岡県福岡市博多区博多駅東3丁目

福岡県福岡市博多区の投資マンション

福岡県福岡市博多区の投資マンション | 投資マンション
投資マンション

1,810万円4.57%

福岡県福岡市博多区美野島2丁目

福岡県福岡市博多区の投資マンション

福岡県福岡市博多区の投資マンション | 投資マンション
投資マンション

1,650万円4.72%

福岡県福岡市博多区半道橋1丁目

福岡県福岡市博多区の投資マンション

福岡県福岡市博多区の投資マンション | 投資マンション
投資マンション

1,980万円3.93%

福岡県福岡市博多区下呉服町

福岡県北九州市小倉北区の投資マンション

福岡県北九州市小倉北区の投資マンション | 投資マンション
投資マンション

1,690万円4.11%

福岡県北九州市小倉北区古船場町

福岡県福岡市博多区の投資マンション

福岡県福岡市博多区の投資マンション | 投資マンション
投資マンション

1,750万円4.82%

福岡県福岡市博多区博多駅南3丁目

福岡県福岡市中央区の投資マンション

福岡県福岡市中央区の投資マンション | 投資マンション
投資マンション

1,800万円4.33%

福岡県福岡市中央区平尾5丁目

【福岡市東区】千早エリア!駅徒歩1分!1…

【福岡市東区】千早エリア!駅徒歩1分!1LDK! | 投資マンション
投資マンション

1,850万円4.02%

福岡県福岡市東区千早5丁目

会員限定物件

投資マンション

1,690万円----%

会員限定物件

投資マンション

1,880万円----%

福岡県福岡市博多区の投資マンション

福岡県福岡市博多区の投資マンション | 投資マンション
投資マンション

2,100万円4.13%

福岡県福岡市博多区博多駅南3丁目
お電話での収益物件資料請求・お問い合わせはこちら

06-6120-9955

問い合わせ番号:185130540 固有番号:816908
この物件にお問い合わせ

会員登録がお済の方は、ログインすると、ご登録内容が自動で入力され、スムーズにお問い合わせできます。

エラーがあります
内容必須
お名前必須
連絡方法必須
メール必須
電話番号必須 ※ハイフン無しで入力
ご年収必須
自己資金必須 万円
会員登録
ご住所
FAX
備考 【その他ご内容】

ご質問や現地見学の希望などがございましたらご記入ください。