さいたま市店舗事務所!融資相談受付中!中国語&EngOK!|埼玉県さいたま市緑区東浦和8丁目の売り店舗・事務所 4,900万円 東浦和駅|不動産投資博士

←不動産賃貸経営博士
>
>
>
>
>
>
>
物件詳細
  • 売り店舗・事務所
  • 空室

情報更新日:2026年04月28日 固有番号:831014

問い合わせ番号:9492061

さいたま市店舗事務所!融資相談受付中!中国語&EngOK! 東浦和駅 売り店舗・事務所

価格4,900万円 利回り−%
所在地埼玉県さいたま市緑区東浦和8丁目  満室時年収−万円(月額収入:−万円)
沿線/交通JR武蔵野線 東浦和駅 徒歩 15分 管理費/修繕積立金−円 / −円
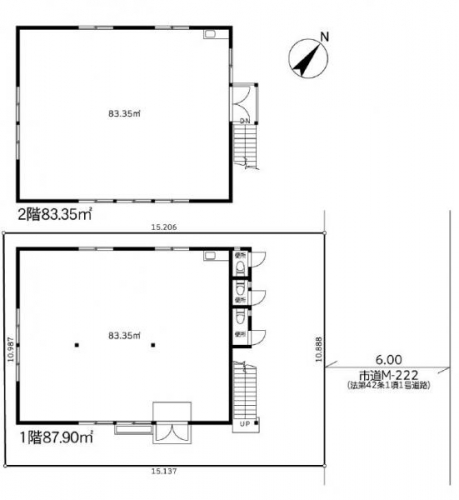
構造/階数鉄骨造(S造) −戸 / 2階建て−階部分(地下−) 築年月2022年2月(築 4年)
専有面積−u バルコニー面積:−u 間取り/方位− / −
駐車場/駐輪場− / − 引渡し即時
取引態様仲介 現況空室
用途地域第一種中高層住居専用地域 土地権利/借地権所有権 / −円
管理組合/管理形態− / − 不動産会社情報株式会社リタ不動産株式会社リタ不動産の収益物件をもっと見る
お電話での収益物件資料請求・お問い合わせはこちら

03-5357-7757

問い合わせ番号:9492061 固有番号:831014
※不動産会社からの上記番号でのお問合せはお断りしております。こちらからお問合せ下さい。

【外観】

画像クリックで写真が切り替わります
  • 【外観】<br />
  • 築5年以内
  • 空室あり

【交通】
●JR武蔵野線「東浦和」駅徒歩15分
English available

この物件を見た方はこんな収益物件も見ています!

館山市北条店舗!融資相談受付中!中国語&…

館山市北条店舗!融資相談受付中!中国語&EngOK! | 売り店舗・事務所
売り店舗・事務所

3,800万円−%

千葉県館山市北条

千葉市花見川区事務所!融資相談受付中!中…

千葉市花見川区事務所!融資相談受付中!中国語&EngOK! | 売り店舗・事務所
売り店舗・事務所

5,770万円−%

千葉県千葉市花見川区三角町

高崎市新保町!融資相談受付中!中国語&E…

高崎市新保町!融資相談受付中!中国語&EngOK! | 売り店舗・事務所
売り店舗・事務所

3,800万円−%

群馬県高崎市新保町
お電話での収益物件資料請求・お問い合わせはこちら

03-5357-7757

問い合わせ番号:9492061 固有番号:831014
この物件にお問い合わせ

会員登録がお済の方は、ログインすると、ご登録内容が自動で入力され、スムーズにお問い合わせできます。

エラーがあります
内容必須
お名前必須
連絡方法必須
メール必須
電話番号必須 ※ハイフン無しで入力
ご年収必須
自己資金必須 万円
会員登録
ご住所
FAX
備考 【その他ご内容】

ご質問や現地見学の希望などがございましたらご記入ください。